- 施工事例 -


家族の存在を身近に感じる平屋建ての住まい札幌市 O様邸
【お客様の声】
マイホームは足元から温まる床暖房が理想。大規模地震を経験し、必然と耐震性にもこだわるようになりました。
私たちの希望を叶えてくれる寿建設さんをネットで知り、モデルを見学。デザインも一目で気に入りました。
当初は2階建てを考えていましたが、子どもたちに目が届き、将来も考慮して平屋建てを選択。
完成したわが家は、暖かくて広々。快適な毎日を過ごしています。
性能に優れ、長く安心して暮らせるのも嬉しいですね。
3,350万円(税込)
※施工金額はご契約時の金額です。現在の価格と異なる場合がございますのでご了承ください。
※施工金額は建物本体価格です。地盤工事、杭工事、外構工事は含みません。
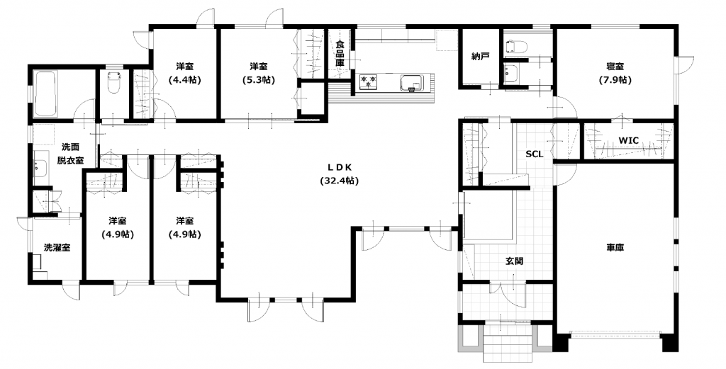
家族構成:夫婦+子ども3人
延床面積:192.90㎡(58.2坪)
敷地面積:711.80㎡(215.3坪)
工法・構造:2×6 ダブル断熱
竣工年月:2019年11月
間取り:5LDK
外部仕上げ
窯業サイディング 16mm
断熱仕様
床:EPSボード 120mm
内部:硬質ウレタンフォーム 140mm
外部:ネオマフォーム 30mm
天井:硬質ウレタンフォーム 286mm
給湯暖房方式
給湯:エコフィール
暖房:エコフィール床下暖房
換気:第三種個別換気
VOICE-お客様の声-でもご紹介しております。

「もっと詳しく寿建設が知りたい!」という方、必見!
「寿建設の家づくり」のあれこれ満載の
コンセプトブックと施工事例集を無料でお配りしています。
寿建設の家づくりの仕様・構造・保証・価格帯・・
ホームページには載せきれなかった色々なことが
載っています!是非お問い合わせください。
モデルハウスにご来場いただいたお客様にもお渡ししています。
お問い合わせ後にしつこく営業のお電話を差し上げることはございませんので
安心してお問い合わせくださいね^^
寿建設の家づくりや、施工事例が掲載されている各種資料もご用意しています
「もっと詳しく寿建設が知りたい!」
という方、必見!
「寿建設の家づくり」の
あれこれ満載のコンセプトブックと
施工事例集を無料でお配りしています。
寿建設の家づくりの仕様・構造
・保証・価格帯・・
ホームページには載せきれなかった
色々なことが載っています!
是非お問い合わせください。
モデルハウスにご来場いただいた
お客様にもお渡ししています。
お問い合わせ後にしつこく
営業のお電話を差し上げることは
ございませんので
安心してお問い合わせくださいね^^
寿建設の家づくりや
施工事例が掲載されている
各種資料もご用意しています


どうぞお気軽にお問い合わせください
0120-512-054(営業時間:9:00〜18:00 定休日:水曜日)































